描述
新綜合大樓位於杭口的市中心。遴近為住宅區,因此有很多社區設,如學校、醫院及健康中心等。地盤於西南面更連接培成花園,成為大樓的前院廣場,使用者可經該廣場直達綜合大樓。
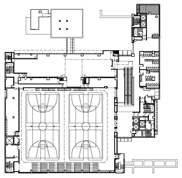
擬議的綜合大樓樓高十層。 大樓主要功能包括社區會堂,室內運動塲,其中包括一個可容納1200 觀眾席的籃球塲、乒乓球室、健身室、室內緩跑徑、兒童室等,西貢區議會,民政事務公眾諮詢服務中心和西貢區政府部門,包括食物及環境衛生署,民政事務處和康樂及文化事務署。
是運動場館設有中庭。它是館內主要行人通道脊柱,兩端設有玻璃幕牆,與培成花園和寶寧路互相呼應。它還向公眾提供了清晰的方向指示及各層報局。
運動塲本為公眾服務,而政府辦公室則被視為私人實體。 兩者雖然沒有實體聯繫,但設計方案創立視覺連接,在辦公室中內可透過玻璃牆,看到體育館中庭。 從而連接起公共與私人空間。
辦公室外牆利用半透明玻璃玻璃幕牆,以允許大量自然光穿透,同時亦保持一定的私隱。大面積的玻璃窗營造了強烈現代感,並建立獨特的建築外觀。而低層的運動塲及社區設施,則以木條砌成「盒子」及幾個開放式露台作有趣味組合。
正門面對的培成花園廣場是個不可缺少的聚會點。民政事務公眾諮詢服務中心與主體建築分開,如似花園內的一個獨立亭子,亦遇意為公眾與政府之間的“連接點” 。
辦公大樓內的露台和綠化屋頂,為工作人員提供了一個安靜的環境。開放式樓梯把辦公室每兩層樓相連一起,這不僅減少了電梯用量,而且在兩樓層之間創造了一個有趣的共融空間, 供員工交流。






























_TC_85x50.png)























