Description
Brief
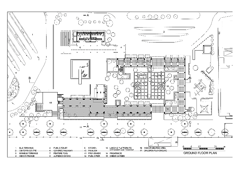
Commonly known as the backgarden of Hong Kong, Sai Kung is endorsed with splendid scenery and a great diversity of activities, and was designated as a tourism development region. The project involves conversion of an existing park at a prime location of the Sai Kung Town into a place with Visitors' Center, alfresco dining areas and outdoor performance areas for visitors, as well as chess garden and resting places for the local people.
Feature Pool to Connection People & Time
The timber deck at the feature pool and the paper boats printed with newscripts tell the history of Sai Kung, and provide a setting for public performance and for children to play.
Visitors' Center as a Gateway to the Natural Recreation World of Sai Kung
The Visitors' Pavilion at the entrance welcomes visitors with banners of vivid color and bold letterings 'Hello, how are you doing?' in ten different languages, as well as paintings of Sai Kung images by local children. The semi outdoor exhibition area provides an informal setting for self-servicing information through an interactive system with monitors and a plasma TV. The covered walkway inserts a short cut between the bus terminus at the Main Entrance and the mini-bus terminus at the Side Entrance, where banners printed with 'Sai Kung Welcomes You' in ten different languages echoes with the Main Entrance.
Alfresco Dining to Enliven the Waterfront Taking the advantageous location of the garden as fronting the sea, part of the existing concrete covered walkway is renovated into a restaurant and a kitchen. With the demolition of some huge concrete structures and the use of folding doors, a transparent view from the garden, the dining area to the promenade is resulted. Cross ventilation is also allowed which replaces the controlled mechanical a/c system with a pleasant and environmental friendly natural cooling by the sea. The dining area stretches out onto the promenade by decking over part of the original planter, and existing palms trees are retained and are incoporated with the new timber trellis to give shades. These, together with the activities contained, enlivens and adds a layer to the Sai Kung promenade.
Chess Garden as a Place for Leisure & a Symbol of Forward The chess garden provides a place for chessing on grassland under the shade of trees. The chess tables are themselves chesses on the huge chess board demarcated by cobble stones, featuring an endgame reminiscent of the difficult situation of the Hong Kong society at the moment, yet with the courage to step out of the situation with wits and collaboration.
































_EN_85x50.png)























